1779 - Clearbrook Road Abbotsford, BC V2T 5X5
Inscription par: CENTURY 21 Canada / Century 21 Coastal Realty Ltd. / Saqib Sheikh

  1779 - Clearbrook Road Abbotsford, BC V2T 5X5

En vigueur (2 Jours)
4 000 $ (CAD)
900
PI. CA.

Description

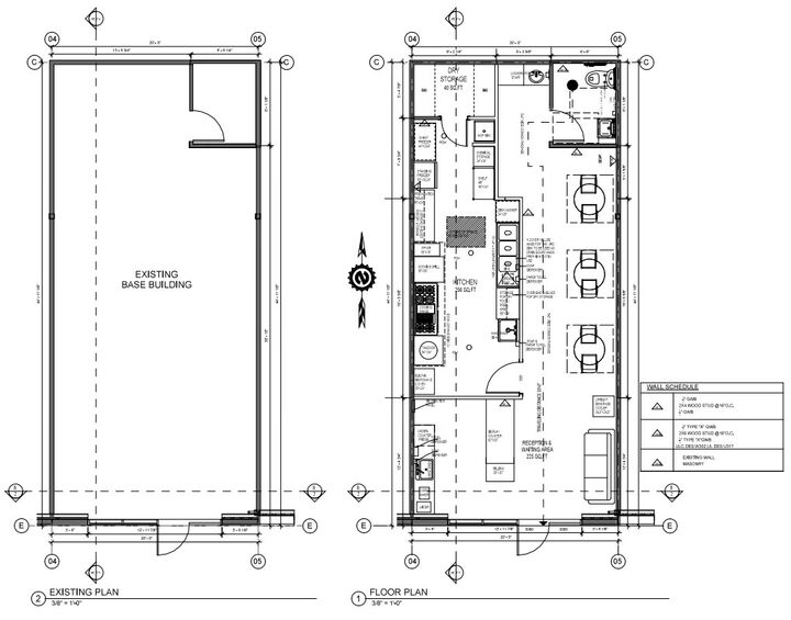
Thoughtfully designed North-facing commercial unit now available in Abbotsford. This 900 sq ft unit has never been occupied and is ready and ideally suited for a restaurant or sweet shop operation. It comes fully equipped with a commercial kitchen featuring a 13-ft hood and offers the security of a long-term lease. The owner has invested hundreds of thousands of dollars into creating a brand-new restaurant space, allowing you to bypass the time-consuming and costly setup process and jump straight into operations. The unit includes a modern false ceiling, efficiently laid out for both dine-in seating and take-out service, and a fully finished, wheelchair-accessible washroom. Conveniently located near Highway 1, with dual access from Clearbrook Road and Marshall Road, and offering ample on-site free customer parking. This is an exceptional opportunity to launch your own BRAND restaurant or sweet shop in a vibrant area surrounded by established and well-known brands. MLS #: C8076771

MLS®:
NMLMJKWYQTHSF
Catégorie
Rental
Nom du bâtiment
Clearbrook Business Centre
Année de Construction
2021
Ville
Canada
Communauté
Poplar

Listed By

Saqib Sheikh, Century 21 Coastal Realty Ltd.
Source
VANCOUVER - IDX
Dernière vérification Mar 10 2026 à 5:47 AM EDT
Détails sur les salles de bains
Alimenté par Walk Score®
Disclaimer: Copyright 2026 Real Estate Board of Greater Vancouver IDX. All rights reserved. This information is deemed reliable, but not guaranteed. The information being provided is for consumers’ personal, non-commercial use and may not be used for any purpose other than to identify prospective properties consumers may be interested in purchasing. Data last updated 3/9/26 22:47